Beschrijving
In de Componistenbuurt staat deze ruime eengezinswoning klaar voor een nieuwe toekomst. Het huis biedt je 105 m² woonoppervlakte, vier slaapkamers, een diepe achtertuin en volop mogelijkheden om het helemaal naar jouw smaak te moderniseren. Voor wie niet op zoek is naar instapklaar, maar juist naar een woning die je echt eigen wilt maken.
De woning is gelegen op een fijne locatie in een nette woonwijk. In de omgeving is genoeg natuur om lekker te wandelen of te fietsen, maar het centrum van Culemborg is ook dichtbij. Hierdoor zijn alle voorzieningen als winkels, horecagelegenheden, supermarkt, scholen en sportfaciliteiten in de buurt. Ook is er op loopafstand een winkelcentrum aanwezig. Uitvalsweg A2 is binnen 10 minuten te bereiken, waardoor je binnen de kortste tijd in nabij gelegen steden bent. Het NS-station Culemborg is ook in de nabijheid met een frequente verbinding naar NS-stations Utrecht en Den Bosch.
Indeling
Begane grond
Je komt binnen in de hal met toilet en meterkast. De woonkamer is licht en ruim en kijkt uit op de tuin. De keuken is voorzien van een koel-vriescombinatie en heeft een stenen aanrechtblad. Ook de wasmachineaansluiting is hier aanwezig. Zowel vanuit de woonkamer als vanuit de keuken, heb je toegang tot de tuin. De begane grond is voorzien van kunststof kozijnen.
Eerste verdieping
Op de eerste verdieping vind je drie slaapkamers en een badkamer. Deze slaapkamers zijn goed van formaat en kunnen ook dienen als thuiswerkplek, hobbykamer of logeerplek. Ook de eerste verdieping is voorzien van kunststof kozijnen.
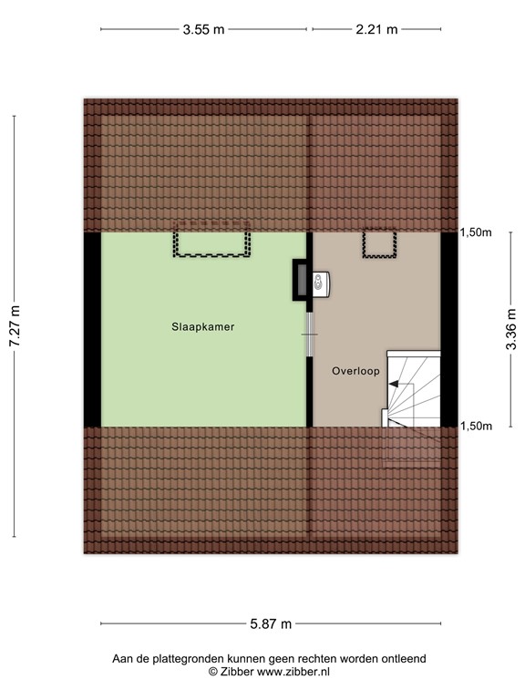
Tweede verdieping
De met een vaste trap te bereiken tweede verdieping, beschikt over een vierde slaapkamer. Op de overloop is de CV-installatie te vinden.
Buitenruimte
De achtertuin is een heerlijk verlengstuk van de woonkamer. Door de ligging en de diepte van de tuin, kun je hier prima van de zon (of van de schaduw) genieten. Achterin bevindt zich een praktische berging en een achterom.
Zie jij hier jouw toekomst? Dan nodigen we je graag uit om zelf de mogelijkheden te komen ervaren. Je bent van harte welkom voor een bezichtiging!
Bijzonderheden
- Ruime tussenwoning met een woonoppervlakte van 105m2;
- Je kunt volledig naar eigen smaak moderniseren;
- 4 slaapkamers;
- Woning is voor een groot gedeelte voorzien van kunststof kozijnen;
- Stenen berging;
- Energielabel C;
- Het centrum, winkelcentrum en vele voorzieningen op fiets-/loopafstand;
- Het openbaar vervoer en de uitvalswegen zijn snel te bereiken;
- Van de woning is een meetrapport aanwezig, gebaseerd op de NEN 2580 meetinstructie. De vermelde oppervlakten en inhoud zijn gebaseerd op dit meetrapport.
Plattegronden
177979093_1582557_barto_begane_grond_tu_first_design_20251014_9de99b.jpg
177979093_1582557_barto_begane_grond_first_design_20251014_f67303.jpg
177979093_1582557_barto_eerste_verdiepi_first_design_20251014_f24960.jpg
177979093_1582557_barto_tweede_verdiepi_first_design_20251014_90ec85.jpg
177979093_1582557_barto_berging_first_design_20251014_25a066.jpg