Beschrijving
Op een fijne locatie in Geldermalsen staat deze verrassend ruime uitgebouwde hoekwoning met een woonoppervlakte van maar liefst 168 m². Met een ruime woonkamer, zes slaapkamers een extra ruimte, welke bijvoorbeeld gebruikt kan worden voor een salon aan huis, thuiskantoor of het realiseren van een slaapkamer beneden, maken deze woning een heerlijke plek om te wonen. Daarnaast is het fijn vertoeven in de achtertuin en heeft de woning de beschikking over een garage.
De woning is gelegen op een geliefde locatie in de rustige en kindvriendelijke wijk Geldermalsen-Zuid. Het centrum van Geldermalsen is dichtbij. Hierdoor zijn alle voorzieningen als winkels, horecagelegenheden, een supermarkt, scholen en sportfaciliteiten in de buurt. Uitvalswegen A2 en A15 zijn binnen 10 minuten te bereiken, waardoor u binnen de kortste tijd in nabij gelegen steden bent. Het NS-station Geldermalsen is op ongeveer 1,5 kilometer gelegen met een frequente verbinding naar NS-stations Utrecht en Den Bosch.
Indeling
Begane grond
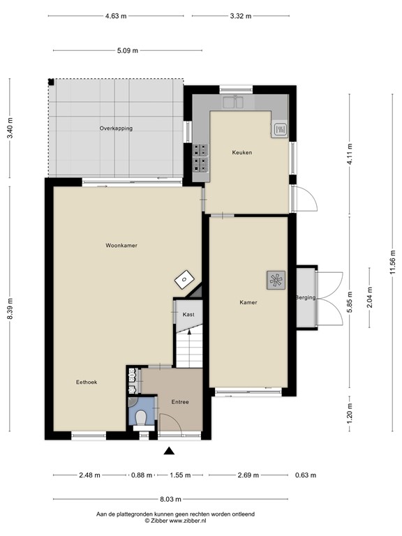
In de hal bevindt zich de meterkast, toilet en de trapopgang. De woonkamer is een heerlijke open ruimte met veel lichtinval. De grote ramen geven een ruimtelijk gevoel en via de schuifpui loop je zo de tuin in. De woonkamer is voorzien van plavuizen en vloerverwarming en er is ook nog een handige trappenkast aanwezig. Via de woonkamer, bereik je de ruime keuken (in het aangebouwde deel). Je kan er heerlijk koken en bakken op de 8-pits gaskookplaat. Verder is er een afzuigkap, een vaatwasser en een koelkast aanwezig. Verder heeft de keuken voldoende opberg- en werkruimte. De tuin is ook via de keuken te bereiken. Aansluitend aan de keuken is de multifunctionele ruimte. Plan van de huidige eigenaar was om hier een slaapkamer en badkamer op de begane grond te realiseren. Deze ruimte kan natuurlijk ook gebruikt worden voor andere doeleinden, zoals een salon aan huis, een thuiskantoor of een speelruimte.
Eerste verdieping
De vier kamers zijn allen groot genoeg om als slaapkamer in te richten. Er kan natuurlijk ook gekozen worden om één van de (slaap)kamers in te richten als thuiswerkplek. De grootste slaapkamer is voorzien van een inbouwkast en een rolluik. Op deze verdieping bevindt zich ook de badkamer, welke is voorzien van een douche, bad, wastafelmeubel en toilet. Ook is hier de wasmachineaansluiting aanwezig. De gehele eerste verdieping is voorzien van een laminaat vloer.
Tweede verdieping
De tweede verdieping is verrassend ruim door de geplaatste dakkapel aan de achterzijde. Deze verdieping biedt nog eens twee extra slaapkamers, waardoor het totaal op zes slaapkamers komt. In de slaapkamer aan de voorzijde is een groot dakraam aanwezig, welke voor veel lichtinval zorgt. De zolderverdieping is voorzien van een zeil op de vloer. Verder is via de overloop de zolder van de uitbouw te bereiken, waardoor er hier veel opbergruimte aanwezig is.
Buitenruimte
Via de woonkamer of de keuken, bereik je de ruime tuin. Hier kan je genieten van de zon (of juist van de schaduw) op de diverse plekken in de tuin. Ook is hier een overkapping voor sfeervolle dagen en avonden. Aan de voorkant is de toegang tot de woning via de nette voortuin. Verder beschikt de woning over een ruime garage, waar je de auto kunt parkeren of kan gebruiken voor opslag, klussen of het veilig stallen van de fietsen.
Ben je op zoek naar een royale woning op een fantastische locatie in Geldermalsen. Plan snel een bezichtiging en ontdek het zelf!
Bijzonderheden
- Mooie uitgebouwde hoekwoning op een perceel van 266m2;
- Woonoppervlakte van 168m2 (inclusief de multifunctionele ruimte);
- Bouwjaar 1976;
- Zes slaapkamers;
- Volledige begane grond en eerste verdieping voorzien van kunststof kozijnen;
- Energielabel B;
- Volledig dubbel glas;
- Ruime garage (dak van de garage is in 2023 volledig vernieuwd);
- Rustige ligging op een fijne locatie;
- Heerlijke tuin op het Oosten met overkapping;
- Het centrum van Geldermalsen en alle voorzieningen op fiets-/loopafstand;
- Van de woning is een meetrapport aanwezig, gebaseerd op de NEN 2580 meetinstructie. De vermelde oppervlakten en inhoud zijn gebaseerd op dit meetrapport.
Plattegronden
179604607_1592889_lange_begane_grond_tu_first_design_20251121_cd7d33.jpg
179604607_1592889_lange_begane_grond_first_design_20251121_af9f68.jpg
179604607_1592889_lange_eerste_verdiepi_first_design_20251121_dd106f.jpg
179604607_1592889_lange_tweede_verdiepi_first_design_20251121_5348d7.jpg
179604607_1592889_lange_garage_first_design_20251121_30f967.jpg