Beschrijving
Welkom bij de Engelandstraat 9 in IJsselstein!
Ben je op zoek naar een fijne, ruime tussenwoning met een moderne afwerking en volop mogelijkheden? Dan is deze woning precies wat je zoekt! Met maar liefst vier slaapkamers, twee badkamers en een dubbele keuken is dit een ideaal huis voor gezinnen of huishoudens met thuiswonende kinderen die behoefte hebben aan hun eigen ruimte. Daarnaast is de woning energiezuinig (energielabel A), voorzien van een warmtepomp en 12 zonnepanelen, dus helemaal klaar voor de toekomst.
De woning is gelegen in een prettige en kindvriendelijke wijk in IJsselstein. In de directe omgeving vind je diverse voorzieningen zoals supermarkten, scholen, sportfaciliteiten en speelgelegenheden. Daarnaast zijn het openbaar vervoer en de uitvalswegen uitstekend bereikbaar, waardoor de stad Utrecht snel en eenvoudig te bereiken is. Ook het gezellige centrum van IJsselstein ligt op korte afstand, met een ruim aanbod aan winkels, horeca en terrasjes. Voor een heerlijke wandeling of een stuk ontspanning ligt het recreatiegebied de Nedereindse Plas op steenworp afstand.
Indeling
Begane grond
Via de entree kom je binnen in een verrassend veelzijdige ruimte. Hier bevindt zich op dit moment een slaapkamer/studio met eigen keuken en badkamer (2022). Perfect als plek voor oudere kinderen, logees of zelfs als werkruimte aan huis. Uiteraard kan deze ruimte ook gewoon als slaapkamer worden gebruikt. Verder is op deze verdieping de praktische berging aanwezig met aansluiting voor de wasmachine.
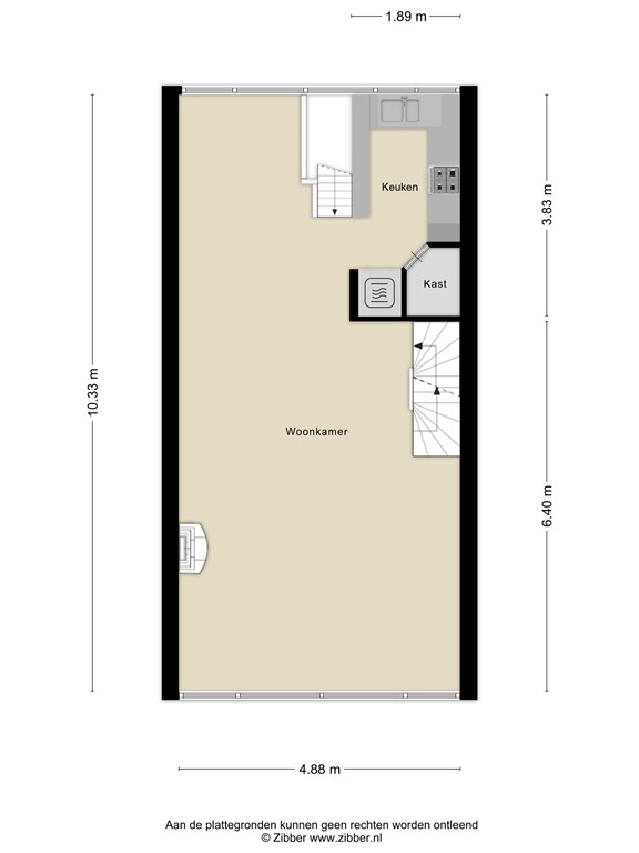
Eerste verdieping
De eerste verdieping vormt het hart van de woning. Hier bevindt zich de lichte woonkamer met veel natuurlijke lichtinval, wat zorgt voor een prettige en open sfeer.
De keuken is eveneens op deze verdieping gesitueerd en biedt voldoende ruimte om uitgebreid te koken en te genieten.
Tweede verdieping
Op de tweede verdieping vind je drie ruime slaapkamers, ideaal voor een gezin. Ook is hier de tweede badkamer aanwezig, wat zorgt voor extra comfort en gemak.
Daarnaast bevindt zich hier de stookruimte met de cv-installatie en warmtepomp.
Buitenruimte
De zonnige tuin op het Zuid-Westen is een heerlijke plek om te ontspannen. In 2023 is er een overkapping geplaatst, waardoor je het hele jaar door van de tuin kunt genieten. Aan de voorzijde van de woning is een parkeerplaats op eigen terrein aanwezig.
Kortom: een veelzijdige en energiezuinige woning op een uitstekende locatie!
Bijzonderheden:
- Fijne ruime tussenwoning;
- Ideale ligging;
- Vier slaapkamers;
- Twee badkamers;
- Dubbele keuken;
- Veel lichtinval;
- Energielabel A;
- Warmtepomp aanwezig (2023);
- 12 zonnepanelen;
- Waterontharder aanwezig;
- Mechanische ventilatie;
- Laminaatvloer (2022);
- Tuin op het Zuid-Westen;
- Overkapping (2023);
- Centrale ligging nabij voorzieningen;
- Het openbaar vervoer en de uitvalswegen zijn snel te bereiken;
- Van de woning is een meetrapport aanwezig, gebaseerd op de NEN 2580 meetinstructie. De vermelde oppervlakten en inhoud zijn gebaseerd op dit meetrapport.
Plattegronden
183497611_1636722_engel_begane_grond_tu_first_design_20260319_f3b84f.jpg
183497611_1636722_engel_begane_grond_first_design_20260319_3ed26c.jpg
183497611_1636722_engel_eerste_verdiepi_first_design_20260319_2868aa.jpg
183497611_1636722_engel_tweede_verdiepi_first_design_20260319_53b9e5.jpg
183497611_1636722_engel_tuinhuis_first_design_20260319_f3c1cf.jpg