Beschrijving
Op een prachtige, vrije locatie in het buitengebied van Dodewaard staat deze karakteristieke vrijstaande woning op een riant perceel van maar liefst 2.200 m². Een plek waar rust, ruimte en comfort samenkomen. Met een woonoppervlakte van 176 m² (inclusief een lichte serre), 40 zonnepanelen, energielabel A en diverse extra’s is dit een woning die echt gezien moet worden.
Deze sfeervolle woning is door de jaren heen met liefde onderhouden en biedt volop ruimte en mogelijkheden voor een gezin, hobby’s en het realiseren van diverse woonwensen. De woning beschikt over drie slaapkamers, twee badkamers, een royale tuinkamer, ruime garage met aangebouwde serre en diverse praktische bijgebouwen waaronder een dierenverblijf, ideaal voor liefhebbers van het buitenleven en dieren. Ook bestaat een mantelzorgwoning op het perceel wellicht tot de mogelijkheden.
De woning ligt aan de rand van Dodewaard, een vriendelijk Betuws dorp met diverse voorzieningen zoals een supermarkt, basisscholen, sportverenigingen en horecagelegenheden. Dodewaard heeft een gunstige ligging ten opzichte van uitvalswegen zoals de A15, waardoor steden als Arnhem, Nijmegen en Tiel uitstekend bereikbaar zijn. Ook het openbaar vervoer is goed geregeld, de treinstations Dodewaard en Opheusden bieden goede verbindingen richting Arnhem en Tiel.
Indeling
Begane grond:
Via de entree kom je binnen in de hal die toegang geeft tot de woonruimtes en de kelder. De woonkamer straalt warmte uit door de karakteristieke details en heeft dankzij de vele ramen een fijne lichtinval. De (woon)keuken is functioneel ingericht en is voorzien van een 5-pits gasfornuis, een koelkast en een afzuigkap en biedt voldoende werk- en opbergruimte. De aangrenzende tuinkamer zorgt voor een prachtig weids uitzicht en maakt dat je in alle seizoenen kunt genieten van het buitenleven. Aansluitend aan de keuken is de bijkeuken, waar een losse vaatwasser aanwezig is. Ook is hier de wasmachine-aansluiting en de toegang naar de badkamer met douche en toilet.
Eerste verdieping:
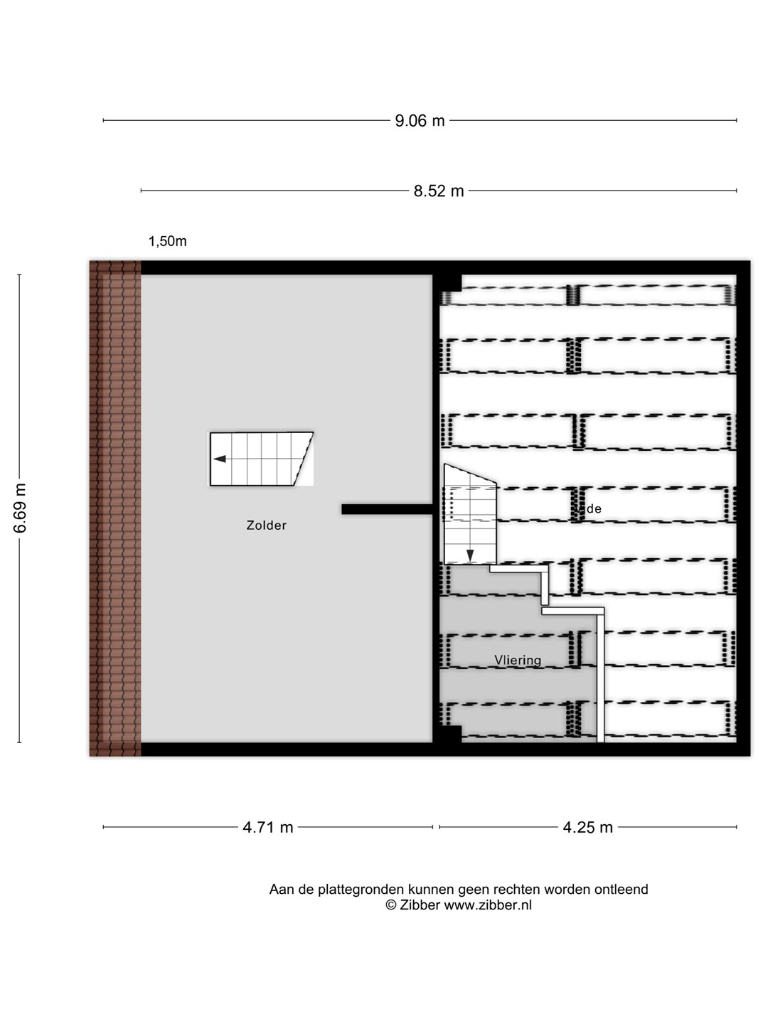
Op de eerste verdieping bevinden zich drie volwaardige slaapkamers en de tweede badkamer, welke is voorzien van een dubbele wastafel, douche, toilet en een verwarming. Eén van de slaapkamers is voorzien van een wastafel. Op de overloop is een vaste kast en een CV-kast aanwezig en is ook de toegang naar de inloopkast/ opbergruimte.
Buitenruimte
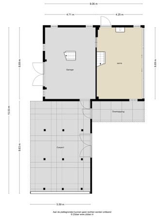
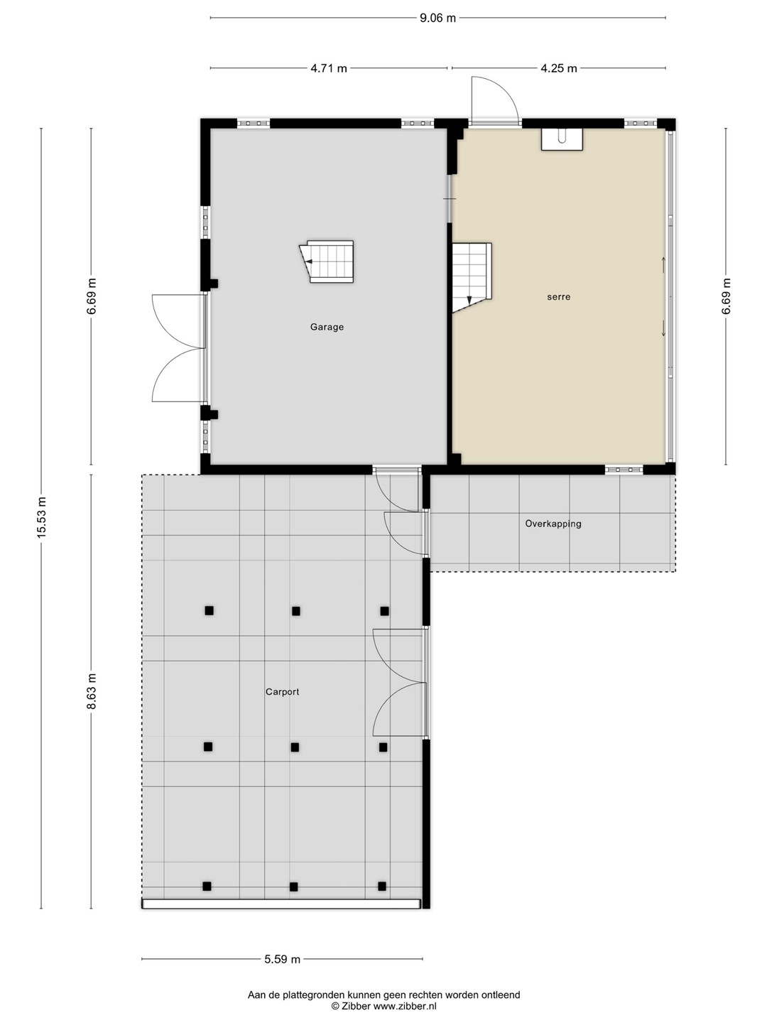
Het royale perceel van 2.200 m² maakt deze woning uniek. De fraai aangelegde tuin biedt rust, privacy en tal van gebruiksmogelijkheden. Denk aan dieren houden, een moestuin aanleggen, spelen, recreëren of het wellicht kunnen plaatsen van een mantelzorgwoning. Dankzij de drie overdekte parkeerplaatsen op eigen terrein en de ruime garage is er altijd voldoende plek voor auto’s, fietsen of opslag. De aan de garage grenzende serre is een heerlijke plek om te kunnen genieten van de rust en ruimte. De serre is voorzien van dubbel glas, wordt verwarmd middels de aanwezige gaskachel en heeft een wateraansluiting, De aanwezigheid van 40 zonnepanelen zorgt bovendien voor lage energiekosten en maakt deze woning toekomstbestendig.
Kortom
Kalkestraat 50 is een ideale woning voor wie op zoek is naar een combinatie van rust, ruimte, karakter en energiezuinig wonen. Deze unieke locatie, het riante perceel en de veelzijdigheid van de woning maken dit een plek waar je vele jaren met plezier zult wonen.
Bijzonderheden:
- Heerlijke vrijstaande woning met een woonoppervlakte van 176m2 (inclusief serre):
- Perceel van maar liefst 2200m2;
- Mooie tuinkamer aan de woning;
- Drie slaapkamers en twee badkamers;
- Drie gaskachels aanwezig voor extra sfeer en warmte;
- Ruime garage met aangebouwde serre;
- Drie overdekte parkeerplaatsen op eigen terrein;
- 40 zonnepanelen;
- Energielabel A;
- Dierenverblijf;
- Voorzieningen en uitvalswegen op korte afstand;
- Van de woning is een meetrapport aanwezig, gebaseerd op de NEN 2580 meetinstructie. De vermelde oppervlakten en inhoud zijn gebaseerd op dit meetrapport.