Beschrijving
Welkom aan de Lisdoddelaan 27 in Leerdam!
Deze heerlijk ruime tussenwoning met een woonoppervlakte van maar liefst 138 m² is gelegen op een perceel van 186 m² en biedt alles wat je zoekt: ruimte, comfort, duurzaamheid en een geliefde woonlocatie. Aan de voorzijde geniet je van een mooi vrij uitzicht, wat direct zorgt voor een gevoel van rust en privacy.
Bij binnenkomst valt direct de royale leefruimte op. De woonkamer is licht en ruim en staat in open verbinding met de moderne luxe keuken, die is voorzien van diverse inbouwapparatuur. Dankzij de nieuwe stijlvolle schuifwand kan je de keuken en woonkamer naar wens van elkaar scheiden of juist open met elkaar verbinden, ideaal voor zowel gezellige avonden als rustig tafelen.
De woning beschikt momenteel over drie ruime slaapkamers (oorspronkelijk vier), met zelfs mogelijkheden tot het realiseren van vijf slaapkamers. Perfect voor gezinnen, thuiswerkers of hobbyliefhebbers. De deels gerenoveerde badkamer is uitgevoerd met zowel een douche als een ligbad, waardoor je hier optimaal kunt ontspannen.
Ook buiten is het genieten. De fijne, ruime achtertuin biedt volop mogelijkheden om te ontspannen, te spelen of gezellig te borrelen met familie en vrienden. Daarnaast beschikt de woning over parkeren op eigen terrein en een garage die zowel van buitenaf als binnendoor bereikbaar is, wat ideaal is voor extra opslag of het veilig stallen van de fietsen.
Op het gebied van duurzaamheid zit je hier uitstekend, de woning is voorzien van 11 zonnepanelen en beschikt over energielabel A. Dat betekent comfortabel wonen met lagere energielasten.
De ligging is bijzonder aantrekkelijk. De woning bevindt zich op een geliefde locatie in een prettige woonwijk. In de directe omgeving vind je scholen, winkels, sportvoorzieningen en groenvoorzieningen. Het centrum van Leerdam is eenvoudig bereikbaar, evenals het treinstation met goede verbindingen richting onder andere Utrecht en Gorinchem. Ook de uitvalswegen (A2 en A15) zijn snel bereikbaar, waardoor steden als Utrecht, Den Bosch en Rotterdam uitstekend te bereiken zijn.
Kortom: een ruime, energiezuinige en veelzijdige woning op een toplocatie!
Indeling
Begane grond
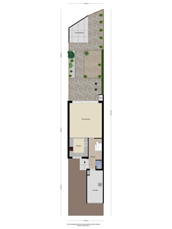
Entree/hal met toiletruimte en toegang tot de woonkamer. Dit betreft een tuingerichte, ruime en lichte woonkamer met aan de voorzijde de moderne luxe keuken met diverse inbouwapparatuur. De keuken biedt een prachtig vrij uitzicht De nieuwe schuifwand zorgt voor een fraaie en praktische scheiding tussen woon- en kookgedeelte. Via de woonkamer is er toegang tot de achtertuin en via de hal is ook de inpandige garage te bereiken. De garage is verder voorzien van een elektrische garagedeur. De gehele begane grond is voorzien van een eikenhouten vloer.
Eerste verdieping
Overloop met toegang tot twee (voorheen drie) ruime slaapkamers. Indien gewenst is hier eenvoudig weer een extra slaapkamer te realiseren. De deels gerenoveerde badkamer is voorzien van een douche, ligbad en wastafelmeubel.
Tweede verdieping
Vaste trap naar de tweede verdieping met overloop en een ruime derde slaapkamer. Hier bevinden zich ook de opstelplaats voor de wasmachine en extra bergruimte. Ook op deze verdieping zijn mogelijkheden voor het creëren van een extra (slaap)kamer, waardoor het totaal zelfs op vijf kamers kan uitkomen.
Buitenruimte
De woning beschikt over een fijne en ruime achtertuin met volop privacy. Hier zijn meerdere terrassen en een overkapping aanwezig, zodat je de hele dag door van de zon (of de schaduw) kan genieten. Aan de voorzijde geniet je van een vrij uitzicht. Daarnaast is er parkeergelegenheid op eigen terrein en beschikt de woning over een garage die zowel van buitenaf als binnendoor bereikbaar is.
Bijzonderheden:
• Heerlijk ruime tussenwoning met een woonoppervlakte van 138 m²;
• Perceel van 186 m²;
• Mooi vrij uitzicht aan de voorkant van de woning;
• 3 slaapkamers (oorspronkelijk 4) met mogelijkheden tot 5;
• Moderne luxe keuken met diverse inbouwapparatuur;
• Nieuwe schuifwand tussen de keuken en de woonkamer;
• Deels gerenoveerde badkamer met douche en ligbad;
• Gelegen op een rustige en geliefde locatie;
• 11 zonnepanelen aanwezig;
• Energielabel A;
• Fijne ruime achtertuin;
• Parkeren op eigen terrein;
• Garage (ook vanuit binnen te bereiken);
• Centrale ligging nabij voorzieningen;
• Het openbaar vervoer en de uitvalswegen zijn snel te bereiken;
• Van de woning is een meetrapport aanwezig, gebaseerd op de NEN 2580 meetinstructie. De vermelde oppervlakten en inhoud zijn gebaseerd op dit meetrapport.